Burghausen / Böhlitz-Ehrenberg:
2 Raumwohnung - Maisonette - vermietet
Objekt-Nr.: 0145DS24

Wohn- und Essbereich

Vorderansicht

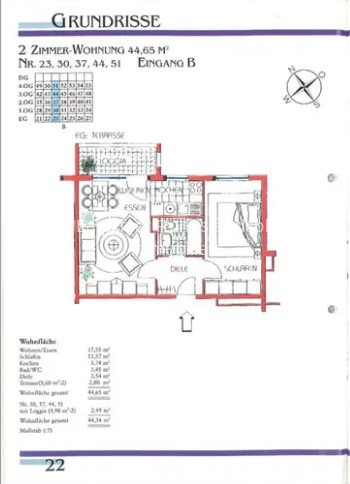
Grundriss

Bad mit Dusche

Wendeltreppe - Zugang Obgergeschoss

Zimmer- Obergeschoss

Zimmer - Obergeschoss

Wohn-und Küchenbereich

Treppenhaus

Keller

Straßenzufahrt

Rückansicht












Preis:
126.000 €
Wohnfläche ca.:
56 m²
Zimmeranzahl:
2
Zum Verkauf steht diese vermietete 2-Zimmer Maisonettewohnung im 4. Obergeschoss eines gepflegten Mehrfamilienhauses in Burghausen / Böhlitz-Ehrenberg. Die Wohnung bietet eine Wohnfläche von ca. 56 m² und verfügt über ein helles und geräumiges Wohnzimmer mit offener Küche, die mit einer kleinen Einbauküche ausgestattet ist. Des Weiteren befindet sich im unteren Bereich das Badezimmer mit Dusche. Über eine Wendeltreppe gelangt man in das Schlafzimmer.
Zur Wohnung gehört ein Keller sowie ein vermieteter Außenstellplatz vor dem Haus. Ein separater Fahrradraum steht allen Mietern/Eigentümern zur Verfügung. Die Wohnung eignet sich ideal für Singles, Paare oder als Kapitalanlage. Interessenten haben die Möglichkeit, eine bereits vermietete Immobilie mit langfristiger Mietsicherheit zu erwerben.
Wohnungstyp: Maisonette
Etagenanzahl: 4
Provision: 3,57 % inkl. 19% Mehrwertsteuer (inkl. MwSt.)
Küche: Einbauküche
Anzahl Schlafzimmer: 1
Anzahl Badezimmer: 1
Keller: ja
vermietet: ja
Anzahl der Parkflächen: 1
Anzahl der Parkflächen: 1 x Außenstellplatz
Baujahr: 1996
Hausgeld: 196 €
Zustand: gepflegt
Heizung: Fernwärme
Befeuerungsart: Gas
Energieausweistyp: Verbrauchsausweis - gültig bis 16.09.2026
Energieeffizienz-Klasse: D
Baujahr laut Energieausweis: 1996
Die von uns gemachten Informationen beruhen auf Angaben des Verkäufers bzw. der Verkäuferin. Für die Richtigkeit und Vollständigkeit der Angaben kann keine Gewähr bzw. Haftung übernommen werden. Ein Zwischenverkauf und Irrtümer sind vorbehalten.
Wir weisen auf unsere Allgemeinen Geschäftsbedingungen hin. Durch weitere Inanspruchnahme unserer Leistungen erklären Sie die Kenntnis und Ihr Einverständnis.
Das könnte Ihnen auch gefallen
Der Leipziger Ruhestandsplaner GmbH
Herr Danny Schuster
Brühl6
04109 Leipzig
Mobil: +49 175 7144527

































































